物件ID:184990
情報公開日:2025年12月16日
情報更新日:2025年12月16日
立地
-
住所 東京都港区六本木六丁目1-5 建物名/所在階 グッドワークビル/2階 最寄駅 東京メトロ日比谷線六本木駅
徒歩1分近隣駅1 ー 近隣駅2 ー
費用/契約
-
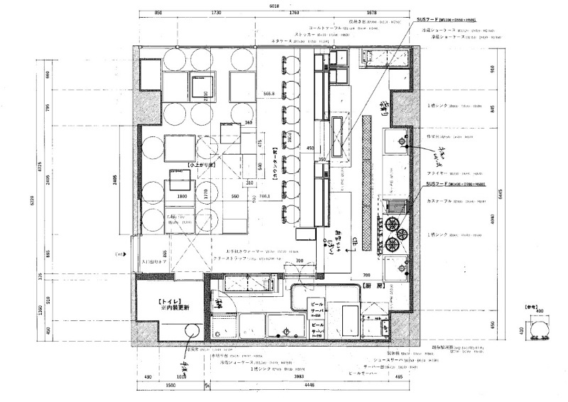
造作価格 ご相談 賃料(坪単価) 715,000円(47,673円) 管理費/共益費(坪単価) ー(ー) 保証金/敷金 9ヶ月 / ー 償却 30% 礼金 2ヶ月 更新料/再契約料 2ヶ月 その他費用 ー 仲介手数料 0ヶ月 その他手数料 ー 契約期間 9年 契約種別 普通賃貸借
用途
-
物件の現況 居酒屋 可能用途 指定あり 坪数 15.00坪
- 備考
- ※定借満了日:2035年1月15日※図面と相違ある場合は現状を優先
※中途礼金あり 3年毎(新賃料 2ヶ月、初回:2029/1/15)
※グリストラップ及び排水管洗浄、指定業者有 ※指定火災保険加入要

























