物件ID:184821
情報公開日:2025年12月15日
情報更新日:2026年03月12日
立地
-
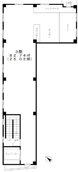
住所 東京都豊島区巣鴨三丁目34-3 建物名/所在階 西村商店第二ビル/3階 最寄駅 JR山手線巣鴨駅
徒歩5分近隣駅1 ー 近隣駅2 ー
費用/契約
-
造作価格 ー 賃料(坪単価) 440,000円(17,579円) 管理費/共益費(坪単価) 33,000円(1,318円) 保証金/敷金 6ヶ月 / ー 償却 1ヶ月 礼金 1ヶ月 更新料/再契約料 ー その他費用 鍵交換代:借主負担 振替手数料:330円(税込)/月 仲介手数料 1ヶ月 その他手数料 ー 契約期間 3年 契約種別
用途
-
物件の現況 カフェ 可能用途 指定あり 坪数 25.03坪
- 備考
- カフェ居抜き、解約時スケルトン返し
造作譲渡無料、設備保証なし ※予告なくスケルトンになる可能性あり



























