物件ID:184717
情報公開日:2025年12月14日
情報更新日:2026年03月07日
立地
-
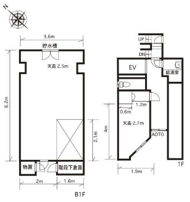
住所 東京都新宿区西新宿八丁目14-18 建物名/所在階 恵南ビル/地下1~1階 最寄駅 東京メトロ丸ノ内線西新宿駅
徒歩2分近隣駅1 ー 近隣駅2 ー
費用/契約
-
造作価格 ー 賃料(坪単価) 440,000円(43,328円) 管理費/共益費(坪単価) ー(ー) 保証金/敷金 8ヶ月 / ー 償却 2ヶ月 礼金 2ヶ月 更新料/再契約料 1ヶ月 その他費用 保証会社・保険等加入要 仲介手数料 1ヶ月 その他手数料 ー 契約期間 2年 契約種別 普通賃貸借
用途
-
物件の現況 サービス(その他) 可能用途 指定あり 坪数 10.15坪
- 備考
- 鍵交換費用 全部で4箇所分:80,000円
退去時クリーニング費用:150,000円
水道代:3,300円/月



























