物件ID:184658
情報公開日:2025年12月13日
情報更新日:2025年12月14日
立地
-
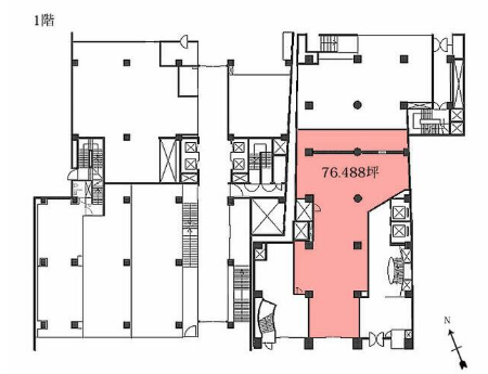
住所 東京都港区虎ノ門一丁目1 建物名/所在階 虎ノ門実業会館(本館) 1F/1階 最寄駅 東京メトロ銀座線虎ノ門駅
徒歩1分近隣駅1 ー 近隣駅2 ー
費用/契約
-
造作価格 ー 賃料(坪単価) 1,642,500円(24,998円) 管理費/共益費(坪単価) 430,020円(6,544円) 保証金/敷金 15ヶ月 / 0ヶ月 償却 ご相談 礼金 0ヶ月 更新料/再契約料 ー その他費用 ー 仲介手数料 1ヶ月 その他手数料 ー 契約期間 5年 契約種別 普通賃貸借
用途
-
物件の現況 ー 可能用途 指定あり 坪数 65.70坪
- 備考




















