物件ID:184625
情報公開日:2025年12月12日
情報更新日:2025年12月12日
立地
-
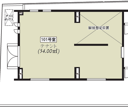
住所 東京都足立区千住一丁目9-7 建物名/所在階 MAISON SA XVIII/1階 最寄駅 JR常磐線(上野~取手)北千住駅
徒歩5分近隣駅1 ー 近隣駅2 ー
費用/契約
-
造作価格 ー 賃料(坪単価) 399,000円(80,772円) 管理費/共益費(坪単価) ー(ー) 保証金/敷金 6ヶ月 / 0ヶ月 償却 ご相談 礼金 1ヶ月 更新料/再契約料 ー その他費用 ー 仲介手数料 1ヶ月 その他手数料 ー 契約期間 15年 契約種別 普通賃貸借
用途
-
物件の現況 ー 可能用途 ご相談 坪数 4.94坪
- 備考
- 保証会社要加入要
令和8年3月末予定



















