物件ID:184374
情報公開日:2025年12月11日
情報更新日:2025年12月11日
立地
-
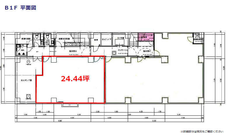
住所 東京都新宿区四谷三丁目5 建物名/所在階 文化エステート四谷ビル/地下1階 最寄駅 東京メトロ丸ノ内線四谷三丁目駅
徒歩1分近隣駅1 ー 近隣駅2 ー
費用/契約
-
造作価格 ー 賃料(坪単価) ご相談(0円) 管理費/共益費(坪単価) ー(ー) 保証金/敷金 ー / 15ヶ月 償却 0% 礼金 0ヶ月 更新料/再契約料 ー その他費用 ー 仲介手数料 1ヶ月 その他手数料 ー 契約期間 10年 契約種別 普通賃貸借
用途
-
物件の現況 ー 可能用途 指定あり 坪数 24.44坪
- 備考



















