物件ID:184368
情報公開日:2025年12月11日
情報更新日:2025年12月11日
立地
-
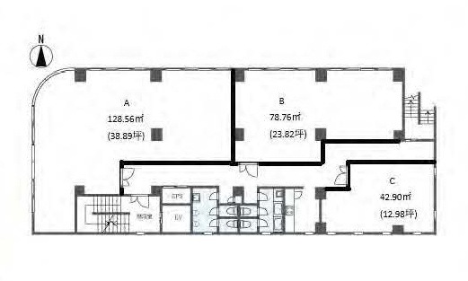
住所 神奈川県横浜市戸塚区品濃町550-5 建物名/所在階 六国建設ビル 3F-B/3階 最寄駅 JR横須賀線東戸塚駅
徒歩5分近隣駅1 ー 近隣駅2 ー
費用/契約
-
造作価格 ー 賃料(坪単価) 327,800円(13,758円) 管理費/共益費(坪単価) 66,000円(2,770円) 保証金/敷金 3ヶ月 / ー 償却 20% 礼金 1ヶ月 更新料/再契約料 ー その他費用 ー 仲介手数料 1ヶ月 その他手数料 ー 契約期間 3年 契約種別
用途
-
物件の現況 ー 可能用途 指定あり 坪数 23.82坪
- 備考
- ■⽔道費:⾯積割りにて貸主より請求
■照明・報知器⼯事 は借主負担
■電気:借 主にて⼦メーター設置要



















