物件ID:184153
情報公開日:2025年12月10日
情報更新日:2025年12月10日
立地
-
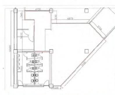
住所 東京都千代田区紀尾井町4-1 建物名/所在階 ホテルニューオータニ ザ・メイン B1F 85.81㎡/地下1階 最寄駅 東京メトロ銀座線赤坂見附駅
徒歩2分近隣駅1 東京メトロ半蔵門線永田町駅
徒歩2分近隣駅2 ー
費用/契約
-
造作価格 ー 賃料(坪単価) 1,248,753円(48,107円) 管理費/共益費(坪単価) 179,046円(6,897円) 保証金/敷金 12ヶ月 / ー 償却 0% 礼金 0ヶ月 更新料/再契約料 0ヶ月 その他費用 ー 仲介手数料 1ヶ月 その他手数料 ー 契約期間 ー 契約種別 普通賃貸借
用途
-
物件の現況 サービス(その他) 可能用途 指定あり 坪数 25.96坪
- 備考





















