物件ID:184149
情報公開日:2025年12月09日
情報更新日:2025年12月10日
立地
-
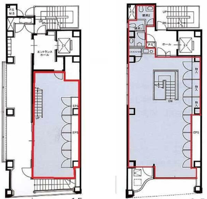
住所 東京都千代田区有楽町一丁目2-15 建物名/所在階 タチバナ日比谷ビル 1F-2F/1~2階 最寄駅 東京メトロ銀座線銀座駅
徒歩8分近隣駅1 ー 近隣駅2 ー
費用/契約
-
造作価格 ー 賃料(坪単価) 2,060,630円(60,486円) 管理費/共益費(坪単価) ー(ー) 保証金/敷金 10ヶ月 / 0ヶ月 償却 ご相談 礼金 0ヶ月 更新料/再契約料 ー その他費用 ー 仲介手数料 1ヶ月 その他手数料 ー 契約期間 5年 契約種別 普通賃貸借
用途
-
物件の現況 ー 可能用途 ご相談 坪数 34.07坪
- 備考
























