物件ID:184122
情報公開日:2025年12月09日
情報更新日:2026年03月02日
立地
-
住所 東京都町田市森野二丁目30-14 建物名/所在階 プライマル町田森野/2階 最寄駅 小田急線町田駅
徒歩7分近隣駅1 JR横浜線町田駅
徒歩9分近隣駅2 ー
費用/契約
-
造作価格 ー 賃料(坪単価) 1,336,500円(16,497円) 管理費/共益費(坪単価) ー(ー) 保証金/敷金 0 / 12ヶ月 償却 0 礼金 0 更新料/再契約料 1ヶ月 その他費用 ー 仲介手数料 1ヶ月 その他手数料 ー 契約期間 3年 契約種別 普通賃貸借
用途
-
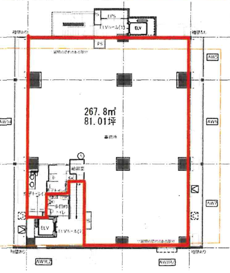
物件の現況 サービス(その他) 可能用途 指定あり 坪数 81.01坪
- 備考
- 機械式駐車場:15,000円(税別)※小型車のみ
・解約予告:6ヶ月 ・2階ワンフロア貸し ・・ガス設備なし
※契約期間相談





















