物件ID:184048
情報公開日:2025年12月09日
情報更新日:2026年03月06日
立地
-
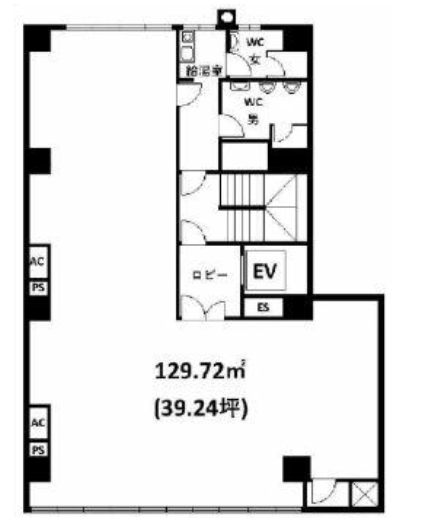
住所 東京都新宿区西新宿一丁目4-11 建物名/所在階 宝ビル/6階 最寄駅 JR山手線新宿駅
徒歩4分近隣駅1 ー 近隣駅2 ー
費用/契約
-
造作価格 ー 賃料(坪単価) 863,280円(22,000円) 管理費/共益費(坪単価) 242,000円(6,167円) 保証金/敷金 5,000,000 / ー 償却 0% 礼金 0ヶ月 更新料/再契約料 1ヶ月 その他費用 保証会社・火災保険加入要 町会費3,000円/月 仲介手数料 1ヶ月 その他手数料 ー 契約期間 3年 契約種別
用途
-
物件の現況 サービス(その他) 可能用途 指定あり 坪数 39.24坪
- 備考
- 夜間オートロック 使⽤制限:7時〜22時半迄 店舗相談可
室外トイレ 個別空調 EV
解約予告6ヶ月前
























