物件ID:184044
情報公開日:2025年12月09日
情報更新日:2025年12月09日
立地
-
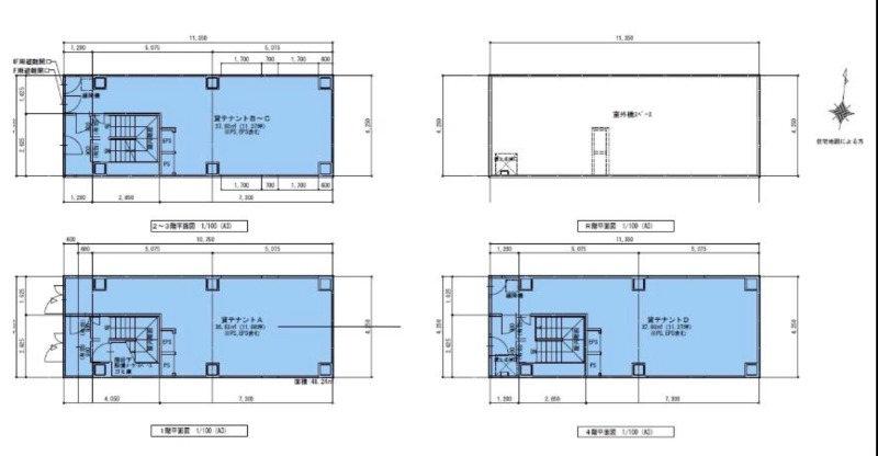
住所 東京都墨田区錦糸三丁目4-1 建物名/所在階 大旺第37ビル/1階 最寄駅 JR中央・総武線錦糸町駅
徒歩1分近隣駅1 東京メトロ半蔵門線錦糸町駅
徒歩1分近隣駅2 ー
費用/契約
-
造作価格 ー 賃料(坪単価) 700,000円(63,994円) 管理費/共益費(坪単価) ー(ー) 保証金/敷金 10ヶ月 / ー 償却 0% 礼金 2ヶ月 更新料/再契約料 1ヶ月 その他費用 ー 仲介手数料 1ヶ月 その他手数料 ー 契約期間 ー 契約種別
用途
-
物件の現況 ー 可能用途 指定あり 坪数 10.94坪
- 備考






















