物件ID:183792
情報公開日:2025年12月07日
情報更新日:2025年12月07日
立地
-
住所 東京都世田谷区玉川二丁目16 建物名/所在階 THE GRANDUO FUTAKOTAMAGAWA SEE/地下1階 最寄駅 東急田園都市線二子玉川駅
徒歩5分近隣駅1 東急大井町線二子玉川駅
徒歩5分近隣駅2 ー
費用/契約
-
造作価格 ー 賃料(坪単価) 836,000円(21,478円) 管理費/共益費(坪単価) 110,000円(2,826円) 保証金/敷金 6ヶ月 / ー 償却 ご相談 礼金 1ヶ月 更新料/再契約料 1ヶ月 その他費用 事務手数料0.25ヶ月 仲介手数料 1ヶ月 その他手数料 ー 契約期間 3年 契約種別
用途
-
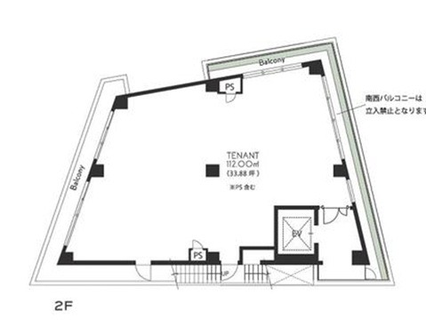
物件の現況 ー 可能用途 指定あり 坪数 38.92坪
- 備考
























