物件ID:183599
情報公開日:2025年12月05日
情報更新日:2025年12月05日
立地
-
住所 東京都中央区銀座六丁目7-2 建物名/所在階 GINZA M TOWER/7階 最寄駅 東京メトロ日比谷線銀座駅
徒歩2分近隣駅1 ー 近隣駅2 ー
費用/契約
-
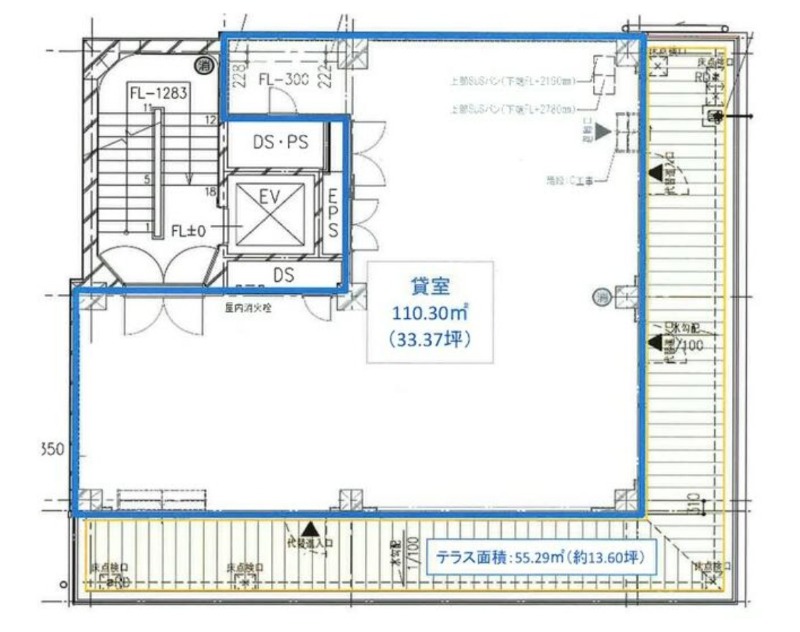
造作価格 ー 賃料(坪単価) 3,670,700円(110,000円) 管理費/共益費(坪単価) ー(ー) 保証金/敷金 ー / 12ヶ月 償却 0% 礼金 0ヶ月 更新料/再契約料 0ヶ月 その他費用 火災保険・保証会社加入要 仲介手数料 1ヶ月 その他手数料 ー 契約期間 5年 契約種別 普通賃貸借
用途
-
物件の現況 ー 可能用途 指定あり 坪数 33.37坪
- 備考
- 飲食・物販不可/サービス店舗・事務所可 電気・ガス・エアコン有
屋外テラス約13.60坪有 エントランス:7時-22時開放
2025年フルリニューアル・耐震補強済 EV1基



















