物件ID:183538
情報公開日:2025年12月05日
情報更新日:2025年12月05日
立地
-
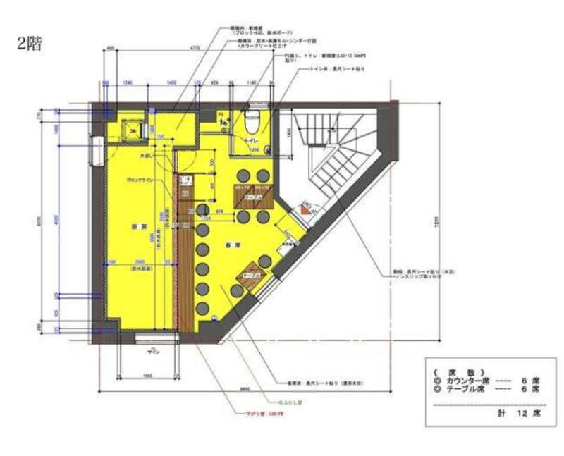
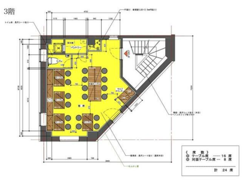
住所 東京都武蔵野市中町一丁目1-10 建物名/所在階 香月駅前ビル/2~3階 最寄駅 JR中央線(快速)三鷹駅
徒歩1分近隣駅1 ー 近隣駅2 ー
費用/契約
-
造作価格 220,000万円 賃料(坪単価) 440,000円(18,917円) 管理費/共益費(坪単価) ー(ー) 保証金/敷金 0ヶ月 / 10ヶ月 償却 3ヶ月 礼金 2ヶ月 更新料/再契約料 1ヶ月 その他費用 ー 仲介手数料 1ヶ月 その他手数料 ー 契約期間 5年 契約種別 普通賃貸借
用途
-
物件の現況 飲食(その他) 可能用途 指定あり 坪数 23.26坪
- 備考
- ダクトの関係で焼き鳥・焼肉などNG、飲食含め他業種相談歓迎
24時間利用可能
諸条件ご相談



























