物件ID:183055
情報公開日:2025年12月02日
情報更新日:2025年12月08日
立地
-
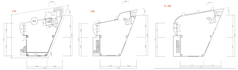
住所 東京都板橋区赤塚新町三丁目3-10 建物名/所在階 共和ハーモテックビル/1~4階 最寄駅 東京メトロ有楽町線地下鉄赤塚駅
徒歩2分近隣駅1 ー 近隣駅2 ー
費用/契約
-
造作価格 ー 賃料(坪単価) 2,488,783円(21,434円) 管理費/共益費(坪単価) ー(ー) 保証金/敷金 ー / 4ヶ月 償却 1ヶ月 礼金 0ヶ月 更新料/再契約料 1ヶ月 その他費用 その他費用有 仲介手数料 1ヶ月 その他手数料 ー 契約期間 2年 契約種別
用途
-
物件の現況 ー 可能用途 ご相談 坪数 116.11坪
- 備考




















