物件ID:182423
情報公開日:2025年11月27日
情報更新日:2026年03月18日
立地
-
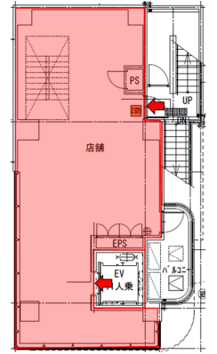
住所 東京都世田谷区北沢二丁目34 建物名/所在階 モモキタ/2階 最寄駅 京王井の頭線下北沢駅
徒歩3分近隣駅1 ー 近隣駅2 ー
費用/契約
-
造作価格 ー 賃料(坪単価) 739,000円(32,976円) 管理費/共益費(坪単価) ー(ー) 保証金/敷金 10ヶ月 / ー 償却 10% 礼金 ご相談 更新料/再契約料 1ヶ月 その他費用 保証会社・火災保険加入要 仲介手数料 1ヶ月 その他手数料 ー 契約期間 5年 契約種別 普通賃貸借
用途
-
物件の現況 ー 可能用途 指定あり 坪数 22.41坪
- 備考
- 階高:3,600㎜ 契約期間相談可
電灯:30kVA・動力:25kVA・ガス:40A・給水:25A
排水150A×1 一般排気650㎥/h 厨房排気900㎥/h



















