物件ID:181931
情報公開日:2025年11月22日
情報更新日:2026年02月24日
立地
-
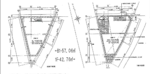
住所 東京都新宿区新宿六丁目26-1 建物名/所在階 NOZY新宿 B1F、1F/地下1~1階 最寄駅 東京メトロ副都心線東新宿駅
徒歩3分近隣駅1 ー 近隣駅2 ー
費用/契約
-
造作価格 ー 賃料(坪単価) 1,025,640円(33,001円) 管理費/共益費(坪単価) ー(ー) 保証金/敷金 6ヶ月 / ー 償却 1ヶ月 礼金 1ヶ月 更新料/再契約料 ー その他費用 ー 仲介手数料 1ヶ月 その他手数料 ー 契約期間 3年 契約種別
用途
-
物件の現況 物販 可能用途 指定あり 坪数 31.08坪
- 備考




















