物件ID:181256
情報公開日:2026年04月30日
情報更新日:2026年04月30日
立地
-
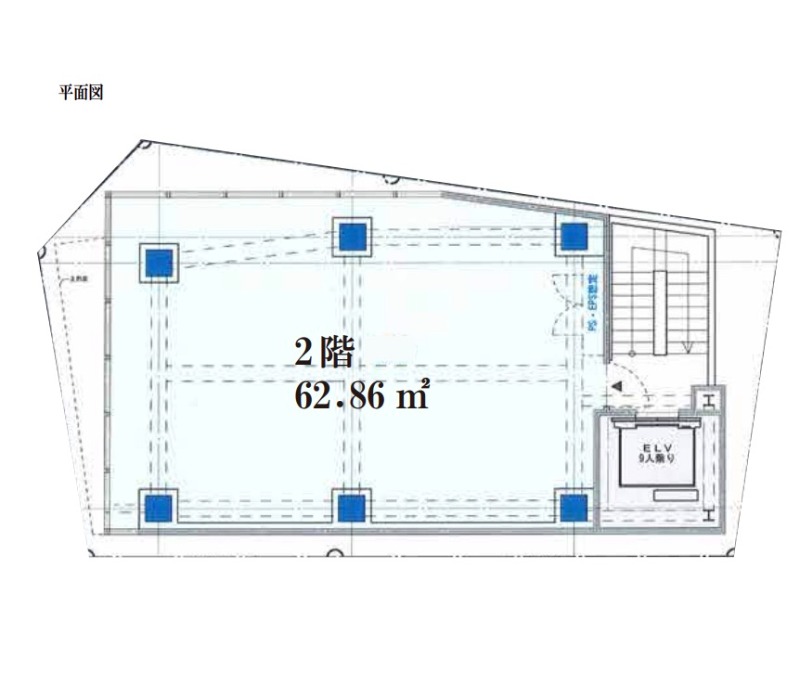
住所 東京都渋谷区神南一丁目15 建物名/所在階 神南一丁目ダイアンクレストビル/2階 最寄駅 JR山手線渋谷駅
徒歩7分近隣駅1 東京メトロ銀座線渋谷駅
徒歩7分近隣駅2 東京メトロ半蔵門線渋谷駅
徒歩7分
費用/契約
-
造作価格 ー 賃料(坪単価) 1,518,000円(79,810円) 管理費/共益費(坪単価) 88,000円(4,626円) 保証金/敷金 10ヶ月 / ー 償却 20% 礼金 2ヶ月 更新料/再契約料 1ヶ月 その他費用 ー 仲介手数料 1ヶ月 その他手数料 ー 契約期間 3年 契約種別
用途
-
物件の現況 ー 可能用途 何業も可 坪数 19.02坪
- 備考





















