物件ID:181196
情報公開日:2025年11月17日
情報更新日:2026年02月10日
立地
-
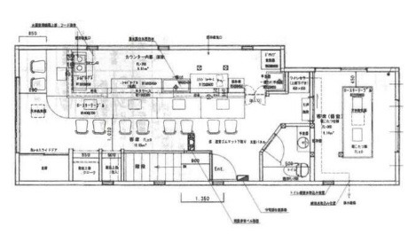
住所 東京都杉並区高円寺北三丁目22-11 建物名/所在階 三貴丸ビルIII/2階 最寄駅 JR中央線(快速)高円寺駅
徒歩2分近隣駅1 JR中央・総武線高円寺駅
徒歩2分近隣駅2 ー
費用/契約
-
造作価格 ご相談 賃料(坪単価) 407,000円(27,335円) 管理費/共益費(坪単価) 33,000円(2,216円) 保証金/敷金 10ヶ月 / 0ヶ月 償却 3ヶ月 礼金 3ヶ月 更新料/再契約料 ー その他費用 ー 仲介手数料 1ヶ月 その他手数料 ー 契約期間 6年 契約種別 普通賃貸借
用途
-
物件の現況 焼肉 可能用途 指定あり 坪数 14.89坪
- 備考
- カラオケ不可
看板使用料:月額22000円


























