物件ID:180798
情報公開日:2025年11月13日
情報更新日:2025年11月13日
立地
-
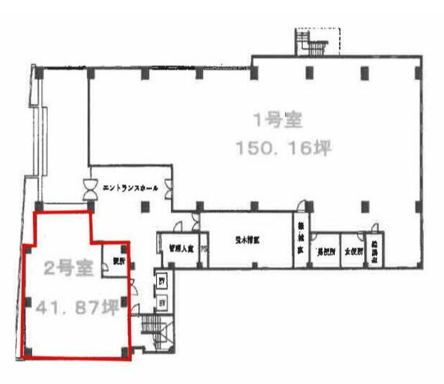
住所 東京都豊島区池袋四丁目32-8 建物名/所在階 サンポウ池袋ビル 102号室/1階 最寄駅 東武東上線北池袋駅
徒歩7分近隣駅1 JR山手線池袋駅
徒歩10分近隣駅2 東京メトロ丸ノ内線池袋駅
徒歩10分
費用/契約
-
造作価格 ー 賃料(坪単価) 598,741円(14,300円) 管理費/共益費(坪単価) 92,114円(2,200円) 保証金/敷金 8ヶ月 / ー 償却 1ヶ月 礼金 0ヶ月 更新料/再契約料 1ヶ月 その他費用 ー 仲介手数料 1ヶ月 その他手数料 ー 契約期間 2年 契約種別 普通賃貸借
用途
-
物件の現況 サービス(その他) 可能用途 指定あり 坪数 41.87坪
- 備考
- 個別空調 有人警備 エレベーター 新耐震基準
賃貸保証加入要 保険加入要 専有部分にトイレあり



















