物件ID:180548
情報公開日:2025年11月12日
情報更新日:2025年11月12日
立地
-
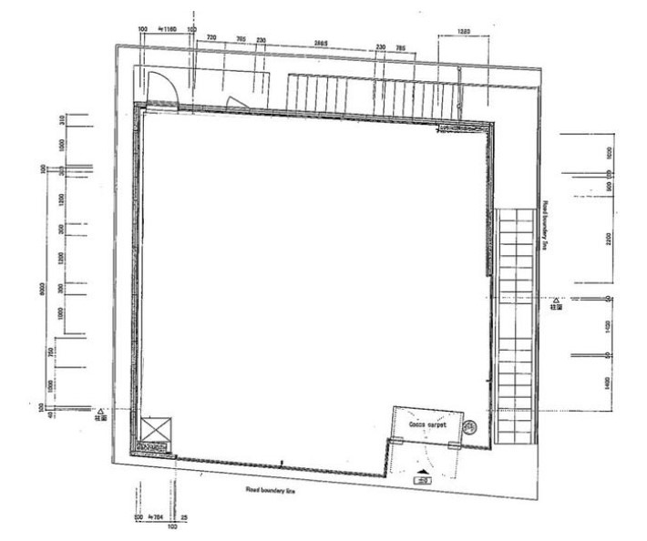
住所 東京都渋谷区鉢山町14-6 建物名/所在階 1階 最寄駅 東急東横線代官山駅
徒歩9分近隣駅1 ー 近隣駅2 ー
費用/契約
-
造作価格 ー 賃料(坪単価) 1,430,000円(58,804円) 管理費/共益費(坪単価) ー(ー) 保証金/敷金 10ヶ月 / 0ヶ月 償却 2% 礼金 2ヶ月 更新料/再契約料 ー その他費用 ー 仲介手数料 1ヶ月 その他手数料 ー 契約期間 4年 契約種別 普通賃貸借
用途
-
物件の現況 ー 可能用途 指定あり 坪数 24.32坪
- 備考
- 飲食不可




















