物件ID:178611
情報公開日:2026年02月05日
情報更新日:2026年02月05日
立地
-
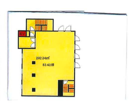
住所 千葉県柏市南柏一丁目2-1 建物名/所在階 飯塚ビル 301 南柏/3階 最寄駅 JR常磐線(上野~取手)南柏駅
徒歩1分近隣駅1 ー 近隣駅2 ー
費用/契約
-
造作価格 ー 賃料(坪単価) 968,000円(10,946円) 管理費/共益費(坪単価) 33,000円(373円) 保証金/敷金 5ヶ月 / ー 償却 20% 礼金 2ヶ月 更新料/再契約料 ー その他費用 ー 仲介手数料 1ヶ月 その他手数料 ー 契約期間 3年 契約種別
用途
-
物件の現況 ー 可能用途 指定あり 坪数 88.43坪
- 備考



















