物件ID:178593
情報公開日:2025年10月28日
情報更新日:2026年01月21日
立地
-
住所 東京都世田谷区新町二丁目7-1 建物名/所在階 横尾ビル/1階 最寄駅 東急田園都市線桜新町駅
徒歩10分近隣駅1 東急田園都市線駒沢大学駅
徒歩15分近隣駅2 東急田園都市線用賀駅
徒歩22分
費用/契約
-
造作価格 ー 賃料(坪単価) 264,000円(14,791円) 管理費/共益費(坪単価) ー(ー) 保証金/敷金 ー / 5ヶ月 償却 ご相談 礼金 0ヶ月 更新料/再契約料 1ヶ月 その他費用 保険等:要 19,000円 ⼝座振替費⽤:月330円 仲介手数料 1ヶ月 その他手数料 ー 契約期間 2年 契約種別
用途
-
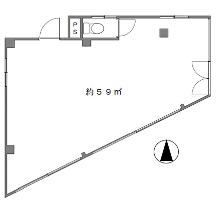
物件の現況 サービス(その他) 可能用途 指定あり 坪数 17.85坪
- 備考
- 防音ガラス設置済(残置物)
貸主免税事業者
専有部分にトイレあり



















