物件ID:178278
情報公開日:2025年10月25日
情報更新日:2025年10月25日
立地
-
住所 東京都足立区綾瀬一丁目27-15 建物名/所在階 M GRAND AYASE 102/1階 最寄駅 東京メトロ千代田線綾瀬駅
徒歩4分近隣駅1 ー 近隣駅2 ー
費用/契約
-
造作価格 ー 賃料(坪単価) 260,000円(19,262円) 管理費/共益費(坪単価) ー(ー) 保証金/敷金 0ヶ月 / 6ヶ月 償却 0% 礼金 2ヶ月 更新料/再契約料 1ヶ月 その他費用 ー 仲介手数料 1ヶ月 その他手数料 ー 契約期間 3年 契約種別
用途
-
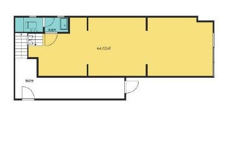
物件の現況 サービス(その他) 可能用途 指定あり 坪数 13.50坪
- 備考



















