物件ID:140778
情報公開日:2025年09月08日
情報更新日:2025年09月08日
立地
-
住所 東京都足立区千住三丁目68-6 建物名/所在階 丸福3丁目/1~2階 最寄駅 JR常磐線(上野~取手)北千住駅
徒歩4分近隣駅1 ー 近隣駅2 ー
費用/契約
-
造作価格 ー 賃料(坪単価) 259,800円(15,473円) 管理費/共益費(坪単価) ー(ー) 保証金/敷金 3ヶ月 / 0ヶ月 償却 3ヶ月 礼金 1ヶ月 更新料/再契約料 ー その他費用 排水管洗浄費有 中途礼金3年毎1.5ヶ月 仲介手数料 1ヶ月 その他手数料 ー 契約期間 9年 契約種別 普通賃貸借
用途
-
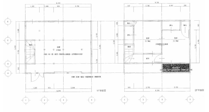
物件の現況 サービス(その他) 可能用途 指定あり 坪数 16.79坪
- 備考
- 転貸契約 カラオケ不可 臭い煙の強い業態相談 営業時間23時迄
指定火災保険加入必須 原則指定保証会社加入/与信により免除有
1Fスケルトン(30.59㎡)、2F元住居(24.92㎡)























