物件ID:178078
情報公開日:2026年01月16日
情報更新日:2026年03月09日
立地
-
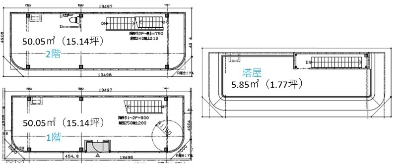
住所 東京都渋谷区渋谷一丁目22-1 建物名/所在階 1~2階 最寄駅 JR山手線渋谷駅
徒歩3分近隣駅1 ー 近隣駅2 ー
費用/契約
-
造作価格 ー 賃料(坪単価) 2,200,000円(72,655円) 管理費/共益費(坪単価) ー(ー) 保証金/敷金 ー / 10ヶ月 償却 20% 礼金 0ヶ月 更新料/再契約料 ー その他費用 ー 仲介手数料 1ヶ月 その他手数料 ー 契約期間 5年 契約種別 普通賃貸借
用途
-
物件の現況 ー 可能用途 指定あり 坪数 30.28坪
- 備考


























