物件ID:177734
情報公開日:2025年10月21日
情報更新日:2026年01月26日
立地
-
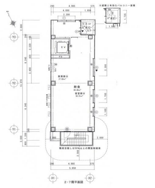
住所 東京都江東区富岡一丁目25-5 建物名/所在階 メディカルビル⾨前仲町/2階 最寄駅 東京メトロ東西線門前仲町駅
徒歩5分近隣駅1 ー 近隣駅2 ー
費用/契約
-
造作価格 ー 賃料(坪単価) 548,900円(22,995円) 管理費/共益費(坪単価) ー(ー) 保証金/敷金 6ヶ月 / ー 償却 2ヶ月 礼金 0ヶ月 更新料/再契約料 1ヶ月 その他費用 保証会社・火災保険加入要 仲介手数料 1ヶ月 その他手数料 ー 契約期間 3年 契約種別
用途
-
物件の現況 ー 可能用途 指定あり 坪数 23.87坪
- 備考
- 水道メーター口径:25㎜ 電灯12KVA 動力20KW
袖看板設置費用:385,000円 看板代:5,500円/月
1フロア1テナント 24時間利用可 天高2.5m以上 EV



























