物件ID:177239
情報公開日:2025年10月16日
情報更新日:2026年03月12日
立地
-
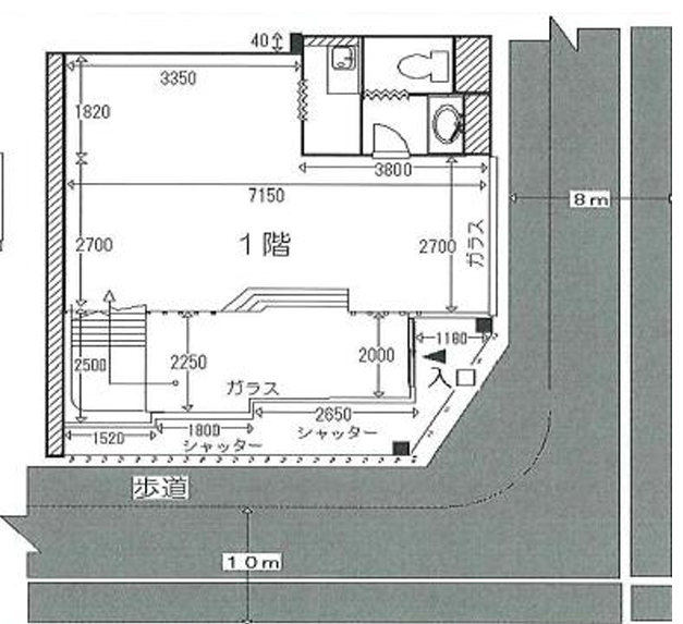
住所 東京都板橋区板橋一丁目43-1 建物名/所在階 板橋一丁目 河野ビル/1階 最寄駅 都営三田線新板橋駅
徒歩4分近隣駅1 ー 近隣駅2 ー
費用/契約
-
造作価格 ー 賃料(坪単価) 350,000円(14,371円) 管理費/共益費(坪単価) ー(ー) 保証金/敷金 5ヶ月 / ー 償却 1ヶ月 礼金 1ヶ月 更新料/再契約料 ー その他費用 ー 仲介手数料 1ヶ月 その他手数料 ー 契約期間 3年 契約種別 普通賃貸借
用途
-
物件の現況 サービス(その他) 可能用途 指定あり 坪数 24.35坪
- 備考




















