物件ID:175763
情報公開日:2025年10月03日
情報更新日:2026年01月23日
立地
-
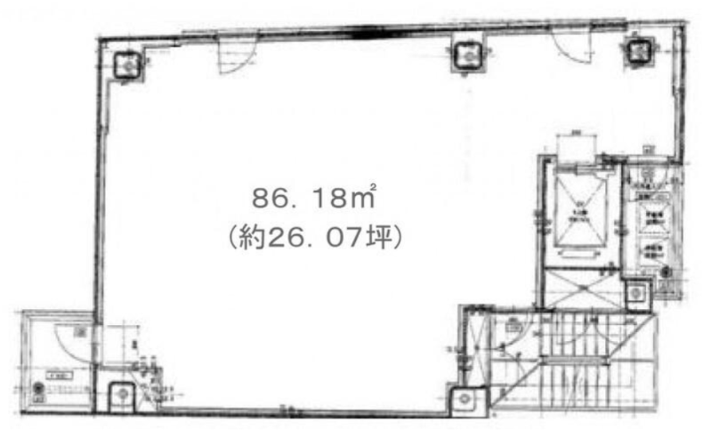
住所 東京都中央区銀座八丁目10-2 建物名/所在階 ルアンビル/7階 最寄駅 東京メトロ銀座線銀座駅
徒歩5分近隣駅1 ー 近隣駅2 ー
費用/契約
-
造作価格 ー 賃料(坪単価) 802,956円(30,800円) 管理費/共益費(坪単価) 157,723円(6,050円) 保証金/敷金 10ヶ月 / ー 償却 2ヶ月 礼金 0ヶ月 更新料/再契約料 1ヶ月 その他費用 保証会社・火災保険加入要 仲介手数料 1ヶ月 その他手数料 ー 契約期間 3年 契約種別
用途
-
物件の現況 ー 可能用途 指定あり 坪数 26.07坪
- 備考
- 前テナント:エステサロン 1フロア1テナント 24時間利用可
エレベーター有





















