物件ID:175211
情報公開日:2025年11月11日
情報更新日:2026年02月19日
立地
-
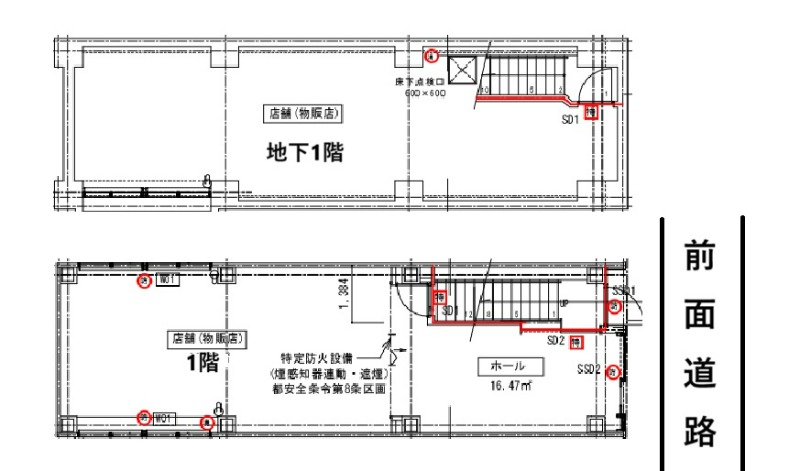
住所 東京都中央区日本橋三丁目8-9 建物名/所在階 地下1~1階 最寄駅 東京メトロ銀座線日本橋駅
徒歩2分近隣駅1 東京メトロ東西線日本橋駅
徒歩2分近隣駅2 JR山手線東京駅
徒歩7分
費用/契約
-
造作価格 ー 賃料(坪単価) 2,464,000円(77,000円) 管理費/共益費(坪単価) ー(ー) 保証金/敷金 10ヶ月 / ー 償却 3ヶ月 礼金 2ヶ月 更新料/再契約料 1ヶ月 その他費用 初回保証委託料:総賃料1カ月分 仲介手数料 1ヶ月 その他手数料 ー 契約期間 5年 契約種別 普通賃貸借
用途
-
物件の現況 ー 可能用途 指定あり 坪数 32.00坪
- 備考
- ※電灯150A・動力40A(動力75Aまで増強予定)
※1階+地下1階セット貸し(分割不可)/保証会社・火災保険要加入
※1階ガス:61,000kcal / スケルトン渡し



















