物件ID:173676
情報公開日:2025年09月17日
情報更新日:2026年03月06日
立地
-
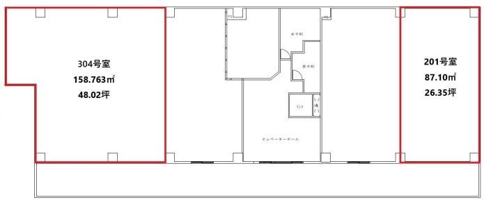
住所 千葉県習志野市泉町三丁目1-5 建物名/所在階 ファーストエイド24/3階 最寄駅 京成本線京成大久保駅
徒歩13分近隣駅1 ー 近隣駅2 ー
費用/契約
-
造作価格 ー 賃料(坪単価) 369,754円(7,699円) 管理費/共益費(坪単価) ー(ー) 保証金/敷金 672,280 / 0ヶ月 償却 20% 礼金 1ヶ月 更新料/再契約料 0ヶ月 その他費用 ー 仲介手数料 1ヶ月 その他手数料 ー 契約期間 2年 契約種別
用途
-
物件の現況 サービス(その他) 可能用途 指定あり 坪数 48.02坪
- 備考



















