物件ID:173445
情報公開日:2025年09月15日
情報更新日:2026年03月02日
立地
-
住所 東京都渋谷区神宮前六丁目29-4 建物名/所在階 渋原XROSS(シブハラクロス)/8~9階 最寄駅 東京メトロ副都心線明治神宮前〈原宿〉駅
徒歩1分近隣駅1 JR山手線原宿駅
徒歩6分近隣駅2 東京メトロ銀座線表参道駅
徒歩9分
費用/契約
-
造作価格 ー 賃料(坪単価) 5,500,000円(71,567円) 管理費/共益費(坪単価) ー(ー) 保証金/敷金 12ヶ月 / 0ヶ月 償却 0% 礼金 1ヶ月 更新料/再契約料 0ヶ月 その他費用 ー 仲介手数料 1ヶ月 その他手数料 ー 契約期間 4年 契約種別 普通賃貸借
用途
-
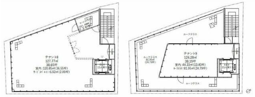
物件の現況 ー 可能用途 指定あり 坪数 76.85坪
- 備考
- 換気口あり/ 排煙設備あり/ 排水設備あり
前面ガラス張り/ 看板取付スペースあり/ デザイナーズ
電灯:20KVA 動力20KW 給水25mm 排水100mm






















