物件ID:172918
情報公開日:2025年09月10日
情報更新日:2026年03月03日
立地
-
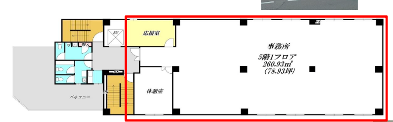
住所 千葉県茂原市千代田町一丁目10-1 建物名/所在階 池澤ビル 5階/5階 最寄駅 JR外房線茂原駅
徒歩1分近隣駅1 ー 近隣駅2 ー
費用/契約
-
造作価格 ー 賃料(坪単価) 434,115円(5,499円) 管理費/共益費(坪単価) ー(ー) 保証金/敷金 ー / 2ヶ月 償却 ご相談 礼金 1ヶ月 更新料/再契約料 ー その他費用 ー 仲介手数料 1ヶ月 その他手数料 ー 契約期間 3年 契約種別
用途
-
物件の現況 サービス(その他) 可能用途 指定あり 坪数 78.93坪
- 備考




















