物件ID:170370
情報公開日:2025年08月22日
情報更新日:2025年11月18日
立地
-
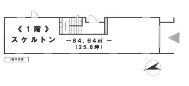
住所 東京都世田谷区砧六丁目15 建物名/所在階 6W 1F /1階 最寄駅 小田急線祖師ヶ谷大蔵駅
徒歩3分近隣駅1 ー 近隣駅2 ー
費用/契約
-
造作価格 ー 賃料(坪単価) 440,000円(17,185円) 管理費/共益費(坪単価) ー(ー) 保証金/敷金 ー / 5ヶ月 償却 0% 礼金 2ヶ月 更新料/再契約料 ー その他費用 ー 仲介手数料 1ヶ月 その他手数料 ー 契約期間 3年 契約種別
用途
-
物件の現況 ー 可能用途 指定あり 坪数 25.60坪
- 備考




















