物件ID:170103
情報公開日:2025年08月20日
情報更新日:2025年11月14日
立地
-
住所 東京都港区三田三丁目1-19 建物名/所在階 柳下ビル/1階 最寄駅 JR山手線田町駅
徒歩7分近隣駅1 ー 近隣駅2 ー
費用/契約
-
造作価格 ご相談 賃料(坪単価) 682,000円(39,195円) 管理費/共益費(坪単価) 44,000円(2,528円) 保証金/敷金 10ヶ月 / ー 償却 3ヶ月 礼金 2ヶ月 更新料/再契約料 ー その他費用 中途礼金:賃料の1.5ヶ月 仲介手数料 1ヶ月 その他手数料 ー 契約期間 5年 契約種別 普通賃貸借
用途
-
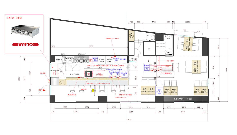
物件の現況 居酒屋 可能用途 何業も可 坪数 17.40坪
- 備考
- 無人販売不可
24時間営業不可




















