物件ID:169692
情報公開日:2025年08月17日
情報更新日:2026年01月15日
立地
-
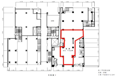
住所 東京都港区虎ノ門一丁目1-20 建物名/所在階 新虎ノ門実業会館(新館) 1F/地下1階 最寄駅 東京メトロ銀座線虎ノ門駅
徒歩1分近隣駅1 東武東上線霞ヶ関駅
徒歩4分近隣駅2 東京メトロ日比谷線虎ノ門ヒルズ駅
徒歩7分
費用/契約
-
造作価格 ー 賃料(坪単価) 1,806,805円(27,498円) 管理費/共益費(坪単価) 430,020円(6,544円) 保証金/敷金 0ヶ月 / 15ヶ月 償却 ご相談 礼金 0ヶ月 更新料/再契約料 ー その他費用 ー 仲介手数料 1ヶ月 その他手数料 ー 契約期間 5年 契約種別 普通賃貸借
用途
-
物件の現況 サービス(その他) 可能用途 指定あり 坪数 65.71坪
- 備考





















