物件ID:166557
情報公開日:2025年12月11日
情報更新日:2025年12月11日
立地
-
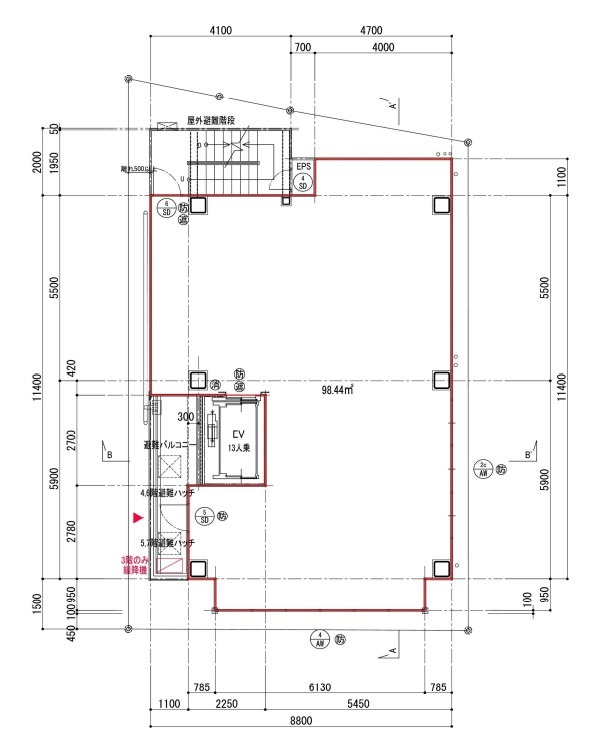
住所 東京都港区麻布十番一丁目11-1 建物名/所在階 6階 最寄駅 東京メトロ南北線麻布十番駅
徒歩1分近隣駅1 ー 近隣駅2 ー
費用/契約
-
造作価格 ー 賃料(坪単価) 1,045,000円(35,092円) 管理費/共益費(坪単価) ー(ー) 保証金/敷金 8ヶ月 / 0ヶ月 償却 2ヶ月 礼金 ご相談 更新料/再契約料 1ヶ月 その他費用 ー 仲介手数料 1ヶ月 その他手数料 ー 契約期間 3年 契約種別
用途
-
物件の現況 ー 可能用途 指定あり 坪数 29.78坪
- 備考
- 深夜営業不可(23時まで)




















