物件ID:166379
情報公開日:2025年08月06日
情報更新日:2025年10月30日
立地
-
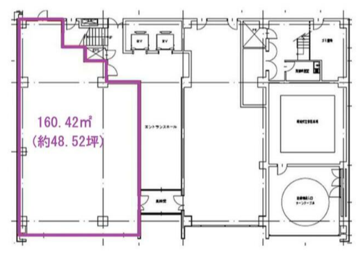
住所 東京都中央区銀座一丁目15-6 建物名/所在階 銀座東洋ビル/1階 最寄駅 東京メトロ有楽町線銀座一丁目駅
徒歩4分近隣駅1 東京メトロ銀座線京橋駅
徒歩5分近隣駅2 東京メトロ銀座線銀座駅
徒歩8分
費用/契約
-
造作価格 ー 賃料(坪単価) 2,134,800円(43,991円) 管理費/共益費(坪単価) ー(ー) 保証金/敷金 12ヶ月 / 0ヶ月 償却 ご相談 礼金 0ヶ月 更新料/再契約料 ー その他費用 賃貸保証加入要 月額固定費の100% 仲介手数料 1ヶ月 その他手数料 ー 契約期間 5年 契約種別 普通賃貸借
用途
-
物件の現況 ー 可能用途 指定あり 坪数 48.53坪
- 備考
- 水道光熱費は別途ご負担いただきます。
機械警備、トイレ、給湯室はありません。
2026年5月上旬引き渡し予定。



























