物件ID:164767
情報公開日:2025年07月01日
情報更新日:2026年03月11日
立地
-
住所 千葉県千葉市若葉区千城台南一丁目1-1 建物名/所在階 みさき屋ビル/1~3階 最寄駅 千葉都市モノレール2号線千城台駅
徒歩3分近隣駅1 千葉都市モノレール2号線千城台北駅
徒歩13分近隣駅2 千葉都市モノレール2号線小倉台駅
徒歩25分
費用/契約
-
造作価格 ー 賃料(坪単価) 1,100,000円(4,791円) 管理費/共益費(坪単価) ー(ー) 保証金/敷金 ー / 3ヶ月 償却 ご相談 礼金 0ヶ月 更新料/再契約料 1ヶ月 その他費用 火災保険・保証会社加入要 仲介手数料 1ヶ月 その他手数料 ー 契約期間 5年 契約種別
用途
-
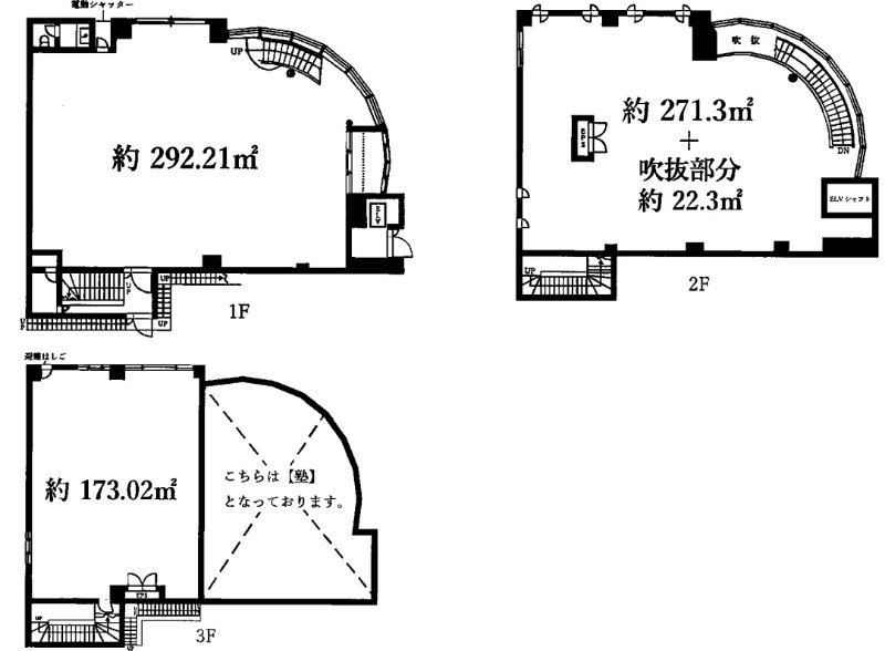
物件の現況 ー 可能用途 指定あり 坪数 229.56坪
- 備考
- 駐車場:無料 空き3台/駐輪場:無料
専有部分にトイレあり
























