物件ID:164416
情報公開日:2025年12月14日
情報更新日:2026年03月10日
立地
-
住所 東京都千代田区外神田二丁目9-10 建物名/所在階 外神田2丁目ビル/1階 最寄駅 JR山手線秋葉原駅
徒歩8分近隣駅1 JR中央線(快速)御茶ノ水駅
徒歩9分近隣駅2 東京メトロ銀座線末広町駅
徒歩6分
費用/契約
-
造作価格 ー 賃料(坪単価) 860,970円(33,003円) 管理費/共益費(坪単価) ー(ー) 保証金/敷金 12ヶ月 / ー 償却 0% 礼金 1ヶ月 更新料/再契約料 ご相談 その他費用 初回保証委託料:賃料等総額100% 仲介手数料 1ヶ月 その他手数料 ー 契約期間 ー 契約種別 普通賃貸借
用途
-
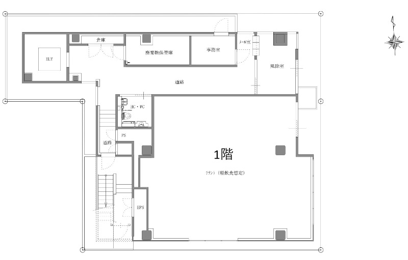
物件の現況 ー 可能用途 指定あり 坪数 26.09坪
- 備考
- 1階:軽飲食・サービス・事務所 2階~4階:事務所・サービス
天井高:1階 天井想定ライン約2800mm 階高 約4000mm
5階~8階は事務所(契約済)

























