物件ID:161300
情報公開日:2025年06月03日
情報更新日:2026年03月04日
立地
-
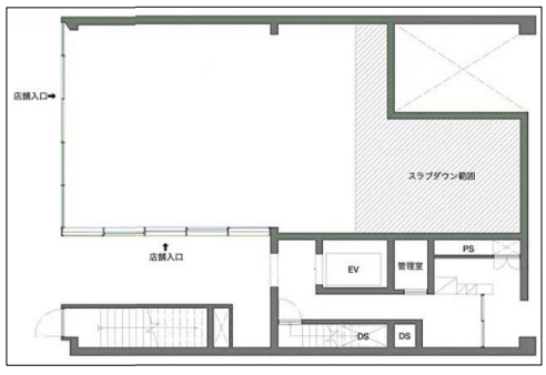
住所 東京都武蔵野市吉祥寺本町一丁目26-8 建物名/所在階 FABRIC吉祥寺/1階 最寄駅 JR中央本線(東京~塩尻)吉祥寺駅
徒歩4分近隣駅1 ー 近隣駅2 ー
費用/契約
-
造作価格 ー 賃料(坪単価) 942,700円(33,205円) 管理費/共益費(坪単価) 55,000円(1,937円) 保証金/敷金 8ヶ月 / 0ヶ月 償却 2ヶ月 礼金 0ヶ月 更新料/再契約料 1ヶ月 その他費用 保証会社・火災保険加入要 仲介手数料 1ヶ月 その他手数料 ー 契約期間 5年 契約種別 普通賃貸借
用途
-
物件の現況 ー 可能用途 指定あり 坪数 28.39坪
- 備考
- 重飲食相談可 天井高:3m 駐輪場あり(330円/月)
5年未満解約時:違約金あり





















