物件ID:157885
情報公開日:2025年05月04日
情報更新日:2026年01月19日
立地
-
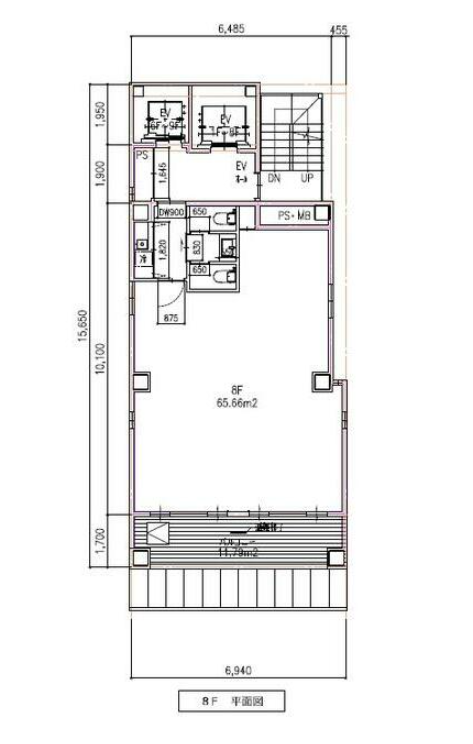
住所 東京都港区新橋二丁目13-6 建物名/所在階 新橋862ビル/8階 最寄駅 JR山手線新橋駅
徒歩5分近隣駅1 都営三田線内幸町駅
徒歩3分近隣駅2 東京メトロ銀座線虎ノ門駅
徒歩10分
費用/契約
-
造作価格 ー 賃料(坪単価) 458,900円(23,097円) 管理費/共益費(坪単価) ご相談(ご相談) 保証金/敷金 ご相談 / 6ヶ月 償却 ご相談 礼金 1ヶ月 更新料/再契約料 1ヶ月 その他費用 ー 仲介手数料 1ヶ月 その他手数料 ー 契約期間 2年 契約種別
用途
-
物件の現況 サービス(その他) 可能用途 指定あり 坪数 19.87坪
- 備考
- 業態につきましてはお気軽にスタッフまでお申し付けくださいませ。
飲食関連の店舗は不可になります。
新橋駅まで徒歩圏内の物件です。





















