物件ID:155249
情報公開日:2025年04月10日
情報更新日:2026年01月22日
立地
-
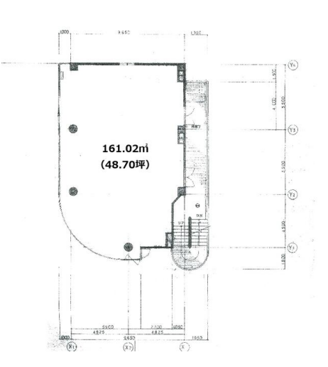
住所 神奈川県藤沢市善行一丁目25-1 建物名/所在階 ロイヤル2ビル/2階 最寄駅 小田急江ノ島線善行駅
徒歩1分近隣駅1 ー 近隣駅2 ー
費用/契約
-
造作価格 ー 賃料(坪単価) 642,840円(13,200円) 管理費/共益費(坪単価) 22,000円(451円) 保証金/敷金 10ヶ月 / 0ヶ月 償却 2ヶ月 礼金 1ヶ月 更新料/再契約料 1ヶ月 その他費用 賃貸保証・店舗総合保険加入要 仲介手数料 1ヶ月 その他手数料 ー 契約期間 5年 契約種別 普通賃貸借
用途
-
物件の現況 ー 可能用途 指定あり 坪数 48.70坪
- 備考
- 医療・サービス店舗可
1フロア1テナント
土日・祝日利用可 適格請求書発行可
























