物件ID:153083
情報公開日:2025年03月25日
情報更新日:2026年03月18日
立地
-
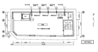
住所 東京都世田谷区松原五丁目3-15 建物名/所在階 (仮称)世⽥⾕区松原5丁⽬新築/2階 最寄駅 京王井の頭線東松原駅
徒歩1分近隣駅1 ー 近隣駅2 ー
費用/契約
-
造作価格 ー 賃料(坪単価) 357,357円(18,698円) 管理費/共益費(坪単価) ー(ー) 保証金/敷金 ー / 6ヶ月 償却 2ヶ月 礼金 0ヶ月 更新料/再契約料 1ヶ月 その他費用 ー 仲介手数料 1ヶ月 その他手数料 ー 契約期間 5年 契約種別 普通賃貸借
用途
-
物件の現況 ー 可能用途 指定あり 坪数 19.11坪
- 備考
- 土日・祝日利用可
エレベーター



















