物件ID:143423
情報公開日:2024年12月23日
情報更新日:2026年03月02日
立地
-
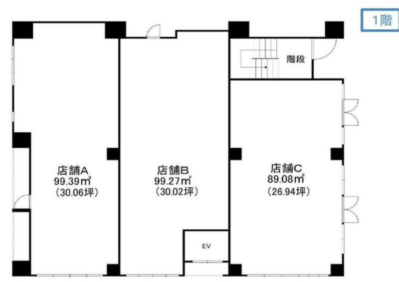
住所 千葉県流山市おおたかの森西一丁目9-4 建物名/所在階 espoir 1FA/1階 最寄駅 つくばエクスプレス流山おおたかの森駅
徒歩3分近隣駅1 ー 近隣駅2 ー
費用/契約
-
造作価格 ー 賃料(坪単価) 831,100円(27,643円) 管理費/共益費(坪単価) 36,850円(1,225円) 保証金/敷金 ー / 10ヶ月 償却 ご相談 礼金 2ヶ月 更新料/再契約料 ー その他費用 ー 仲介手数料 1ヶ月 その他手数料 ー 契約期間 3年 契約種別
用途
-
物件の現況 ー 可能用途 指定あり 坪数 30.07坪
- 備考



















