物件ID:140295
情報公開日:2025年08月12日
情報更新日:2025年11月05日
立地
-
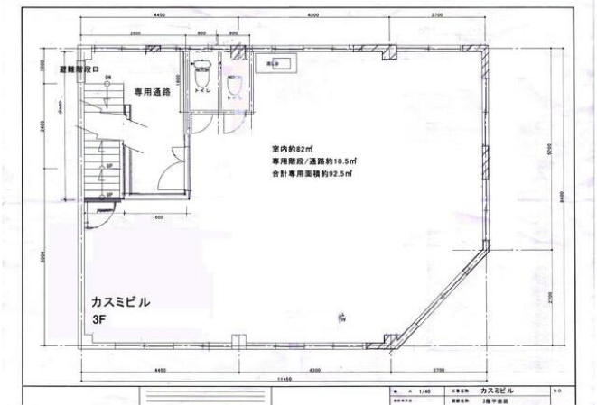
住所 東京都葛飾区東金町一丁目41-8 建物名/所在階 カスミビル/3階 最寄駅 JR常磐線(上野~取手)金町駅
徒歩2分近隣駅1 京成金町線京成金町駅
徒歩3分近隣駅2 ー
費用/契約
-
造作価格 ー 賃料(坪単価) 308,000円(12,397円) 管理費/共益費(坪単価) ー(ー) 保証金/敷金 6ヶ月 / ー 償却 1ヶ月 礼金 0ヶ月 更新料/再契約料 ー その他費用 ー 仲介手数料 1ヶ月 その他手数料 ー 契約期間 3年 契約種別 普通賃貸借
用途
-
物件の現況 サービス(その他) 可能用途 指定あり 坪数 24.84坪
- 備考























