物件ID:197687
情報公開日:2026年04月02日
情報更新日:2026年04月03日
立地
-
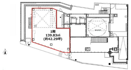
住所 東京都港区赤坂四丁目1-6 建物名/所在階 NBL ARK TOWER/1階 最寄駅 東京メトロ丸ノ内線赤坂見附駅
徒歩3分近隣駅1 ー 近隣駅2 ー
費用/契約
-
造作価格 ー 賃料(坪単価) 1,488,608円(35,192円) 管理費/共益費(坪単価) 139,557円(3,299円) 保証金/敷金 0ヶ月 / 10ヶ月 償却 ご相談 礼金 0ヶ月 更新料/再契約料 0ヶ月 その他費用 ー 仲介手数料 1ヶ月 その他手数料 ー 契約期間 5年 契約種別 普通賃貸借
用途
-
物件の現況 ー 可能用途 ご相談 坪数 42.30坪
- 備考



















