物件ID:197664
情報公開日:2026年04月02日
情報更新日:2026年04月02日
立地
-
住所 神奈川県横浜市瀬谷区卸本町9308-23 建物名/所在階 卸本町倉庫/1~3階 最寄駅 東急田園都市線南町田グランベリーパーク駅
徒歩32分近隣駅1 ー 近隣駅2 ー
費用/契約
-
造作価格 ー 賃料(坪単価) 1,980,000円(7,576円) 管理費/共益費(坪単価) ー(ー) 保証金/敷金 3ヶ月 / 0 償却 20% 礼金 1ヶ月 更新料/再契約料 ご相談 その他費用 ー 仲介手数料 1ヶ月 その他手数料 ー 契約期間 5年 契約種別
用途
-
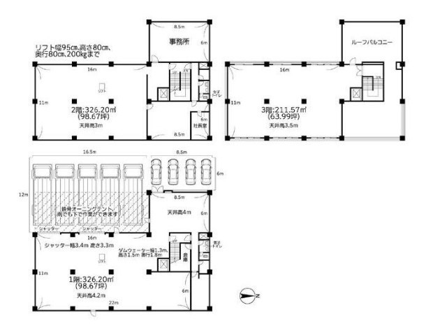
物件の現況 サービス(その他) 可能用途 ご相談 坪数 261.35坪
- 備考
- 駐車場:大型ロングトラック5台・普通車4台の計9台まで駐車可能






















