物件ID:197526
情報公開日:2026年04月02日
情報更新日:2026年04月02日
立地
-
住所 東京都府中市府中町一丁目8-1 建物名/所在階 府中駅前ビル/1階 最寄駅 京王線府中駅
徒歩1分近隣駅1 ー 近隣駅2 ー
費用/契約
-
造作価格 ー 賃料(坪単価) 5,390,000円(28,978円) 管理費/共益費(坪単価) ー(ー) 保証金/敷金 10ヶ月 / 0ヶ月 償却 ご相談 礼金 1ヶ月 更新料/再契約料 1ヶ月 その他費用 ー 仲介手数料 1ヶ月 その他手数料 ー 契約期間 2年 契約種別
用途
-
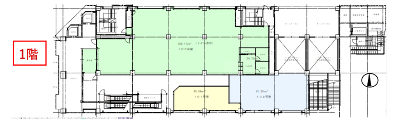
物件の現況 ー 可能用途 指定あり 坪数 186.00坪
- 備考
- 101区画45.84㎡(13.87坪) 102区画 91.35㎡
103区画 324.17㎡(98.06坪





















